Appartamento in Vendita a Bologna – Rif. AB1C60780
- € 305.000
Panoramica
- Appartamento
- 2
- 1
- 82 m²
Descrizione
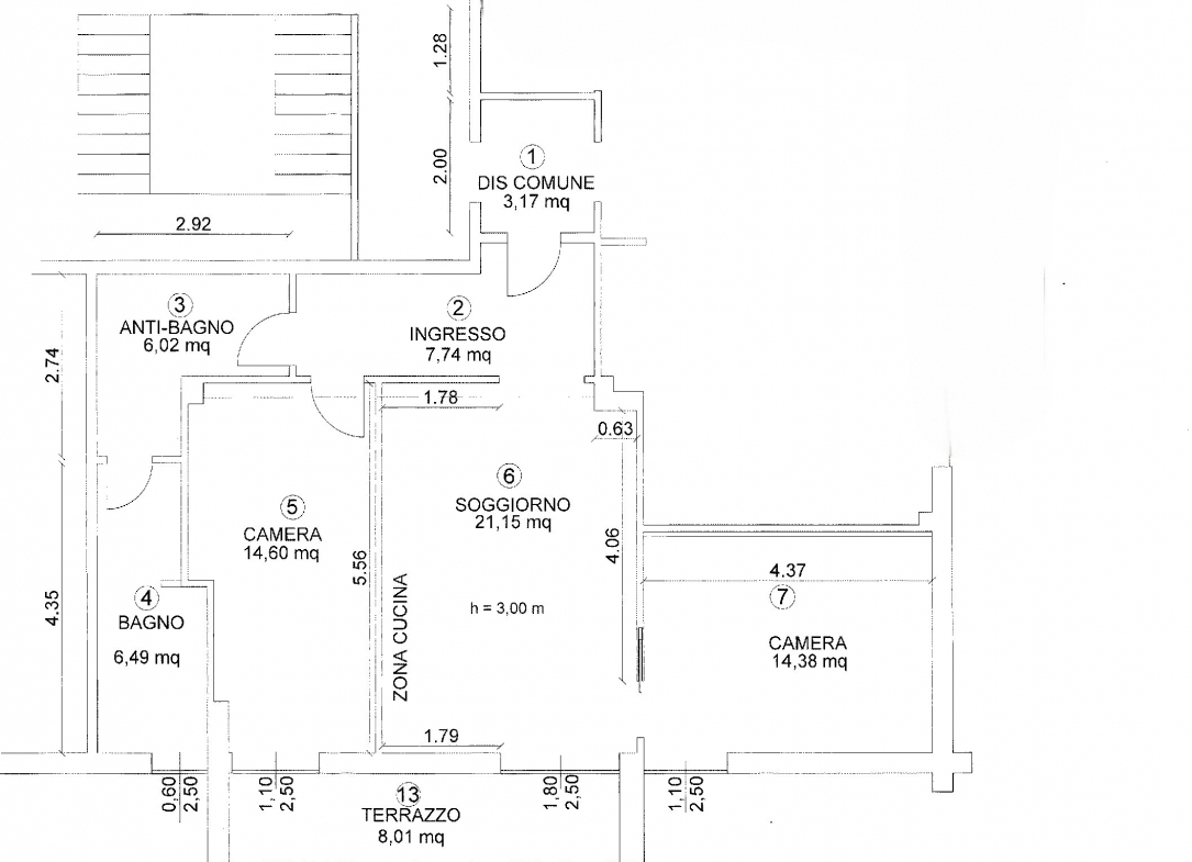
Mazzini – Fossolo – Via Spina In zona residenziale e servitissima proponiamo in vendita all’interno di un edificio recentemente rinnovato e circondato da un’ampia area verde condominiale, un appartamento silenzioso, luminoso e con vista panoramica sui parchi del fossolo, posto al sesto piano servito da doppio ascensore, totalmente ristrutturato a nuovo da impresa con ottime finiture e una buona disposizione interna, di mq 82, attualmente composto da ingresso arredabile, ampia zona living con angolo cottura, due camere matrimoniali, terrazzo di mq 8 al quale si accede sia dalla zona giorno che da una delle camere da letto, antibagno con comodo angolo lavanderia, bagno finestrato con doccia. Completa la proprietà un garage di mq 13 che viene venduto a parte. L’immobile è libero e pronto per essere abitato. La ristrutturazione è appena ultimata. Impianti rifatti e certificati, predisposizione aria condizionata, infissi in pvc con vetrocamera, porte interne laccate bianche, porta d’ingresso blindata, pavimenti nuovi in pvc a listoni effetto legno. Libero subito Euro 305.000 + garage € 25.000
Indirizzo
Apri su Google Maps-
Indirizzo: Via Spina
-
Città: Bologna
-
CAP: 40100
-
Zona: Mazzini
Dettagli
-
Prezzo € 305.000
-
Superficie 82 m²
-
Camere 2
-
Locali 3
-
Bagno 1
-
Anno di costruzione 1971
-
Tipologia Appartamento
-
Contratto Vendita
-
Riscaldamento Centrale a olio
Caratteristiche
Classe Energetica
-
Classe Energetica: E
- A+
- A
- B
- C
- D
- | Classe energetica EE
- F
- G
- H
Calcolo Mutuo
-
Acconto
-
Ammontare del prestito
-
Rata mensile







































